LA FIESTA
Info
Rental Transactions (Recent 6 Months) : 0
Total Units : 0
Multiple Properties Owner Units : 0
Foreign Owners : 0
Push Technology Delivery System (PTDS). All Numbers are Prescoped/Prescored. Realtime DNC Scrubbed and PDPA Compliant.
Building Details
50 SENGKANG SQUARE15 Floors60 Units
52 SENGKANG SQUARE15 Floors60 Units
54 SENGKANG SQUARE15 Floors60 Units
56 SENGKANG SQUARE15 Floors60 Units
58 SENGKANG SQUARE15 Floors60 Units
60 SENGKANG SQUARE15 Floors60 Units
62 SENGKANG SQUARE15 Floors60 Units
64 SENGKANG SQUARE15 Floors75 Units
66 SENGKANG SQUARE15 Floors60 Units
68 SENGKANG SQUARE15 Floors75 Units
70 SENGKANG SQUARE15 Floors60 Units
72 SENGKANG SQUARE15 Floors60 Units
74 SENGKANG SQUARE15 Floors60 Units

Gallery

Cover

 

Diagramatic

 

Location Map

 

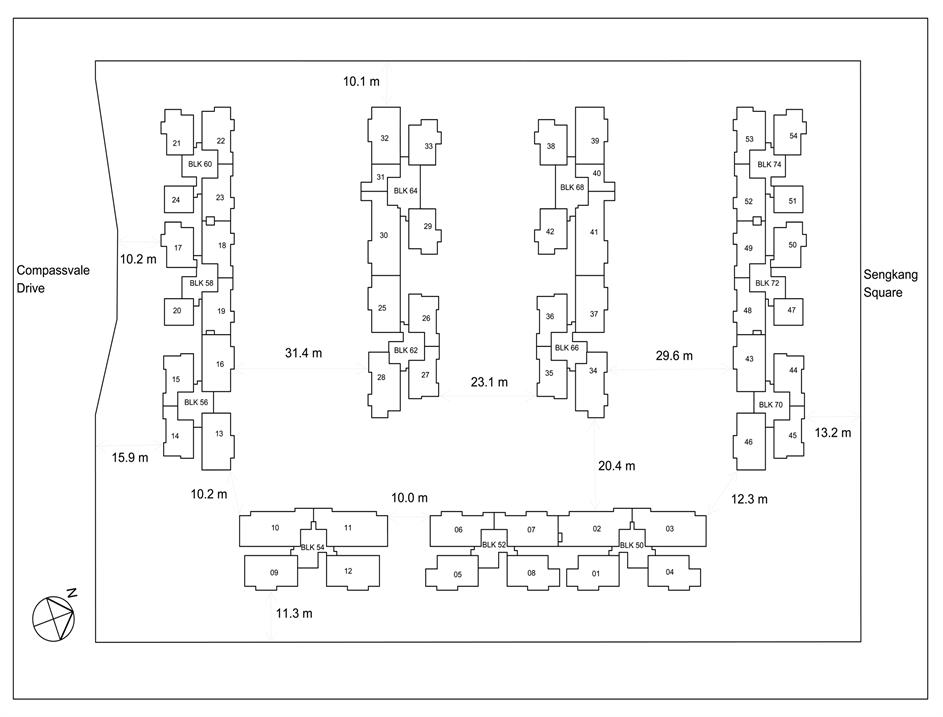
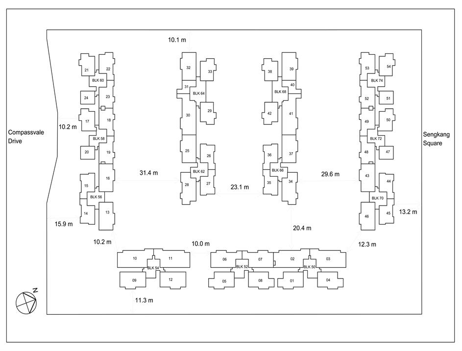
Site Development Plan

 

Site Development Plan

 

Site Plan

 

Specifications

 

Units Distribution

 

RENTAL TRANSACTIONS

104 Rental Transactions

Rental Price Date Area (Sqft) Floor Source
$ 2,5002025/09/01Sep-2025400-500URA
$ 2,7252025/09/01Sep-2025400-500URA
$ 2,9002025/09/01Sep-2025400-500URA
$ 3,7002025/09/01Sep-2025700-800URA
$ 3,8002025/09/01Sep-20251000-1100URA
$ 3,8002025/09/01Sep-2025700-800URA
$ 3,9502025/09/01Sep-2025800-900URA
$ 5,0002025/09/01Sep-20251000-1100URA
$ 6,2502025/09/01Sep-20251300-1400URA
$ 3,1002025/08/01Aug-2025700-800URA
$ 3,2502025/08/01Aug-2025700-800URA
$ 3,5002025/08/01Aug-20251000-1100URA
$ 3,6002025/08/01Aug-2025900-1000URA
$ 3,9002025/08/01Aug-2025700-800URA
$ 4,2002025/08/01Aug-2025800-900URA
$ 4,2502025/08/01Aug-20251000-1100URA
$ 4,9002025/08/01Aug-20251000-1100URA
$ 2,8002025/07/01Jul-2025400-500URA
$ 3,5502025/07/01Jul-2025700-800URA
$ 3,8502025/07/01Jul-2025800-900URA
$ 3,9002025/07/01Jul-20251000-1100URA
$ 3,9002025/07/01Jul-2025900-1000URA
$ 4,7002025/07/01Jul-20251000-1100URA
$ 5,0002025/07/01Jul-2025800-900URA
$ 2,7502025/06/01Jun-2025400-500URA
$ 3,0002025/06/01Jun-2025400-500URA
$ 3,3002025/06/01Jun-2025500-600URA
$ 4,1002025/06/01Jun-2025900-1000URA
$ 5,2002025/06/01Jun-20251000-1100URA
$ 3,1502025/05/01May-2025400-500URA
$ 4,2002025/05/01May-2025900-1000URA
$ 5,0002025/05/01May-20251400-1500URA
$ 2,7002025/04/01Apr-2025400-500URA
$ 3,2002025/04/01Apr-2025900-1000URA
$ 3,3502025/04/01Apr-2025700-800URA
$ 4,0002025/04/01Apr-2025800-900URA
$ 4,4002025/04/01Apr-2025800-900URA
$ 2,7002025/03/01Mar-2025400-500URA
$ 2,8002025/03/01Mar-2025400-500URA
$ 3,3002025/03/01Mar-2025700-800URA
$ 3,4502025/03/01Mar-2025700-800URA
$ 3,6502025/03/01Mar-2025700-800URA
$ 3,7502025/03/01Mar-2025800-900URA
$ 3,8002025/03/01Mar-2025800-900URA
$ 3,9002025/03/01Mar-2025800-900URA
$ 4,1002025/03/01Mar-2025800-900URA
$ 4,3502025/03/01Mar-2025800-900URA
$ 4,6002025/03/01Mar-20251000-1100URA
$ 5,5002025/03/01Mar-20251400-1500URA
$ 6,0252025/03/01Mar-20251300-1400URA
$ 2,8002025/02/01Feb-2025400-500URA
$ 2,9002025/02/01Feb-2025400-500URA
$ 3,5002025/02/01Feb-2025700-800URA
$ 3,6002025/02/01Feb-2025700-800URA
$ 4,0002025/02/01Feb-20251100-1200URA
$ 4,0002025/02/01Feb-2025700-800URA
$ 4,0002025/02/01Feb-2025800-900URA
$ 4,1002025/02/01Feb-2025800-900URA
$ 4,2002025/02/01Feb-20251100-1200URA
$ 4,2002025/02/01Feb-2025800-900URA
$ 4,3002025/02/01Feb-20251000-1100URA
$ 4,5002025/02/01Feb-2025900-1000URA
$ 3,0002025/01/01Jan-2025400-500URA
$ 3,4002025/01/01Jan-2025700-800URA
$ 4,0002025/01/01Jan-20251100-1200URA
$ 4,0002025/01/01Jan-2025700-800URA
$ 4,0002025/01/01Jan-2025800-900URA
$ 4,0002025/01/01Jan-2025900-1000URA
$ 4,1502025/01/01Jan-20251000-1100URA
$ 4,1502025/01/01Jan-20251100-1200URA
$ 2,7002024/12/01Dec-2024700-800URA
$ 3,7002024/12/01Dec-2024800-900URA
$ 3,8002024/12/01Dec-20241400-1500URA
$ 4,3502024/12/01Dec-20241000-1100URA
$ 2,2002025/09/20Sep-20251366.9908-11OTHERS
$ 1,1902025/09/11Sep-20251366.9909-10OTHERS
$ 3,8002025/08/23Aug-2025839.9904-19OTHERS
$ 1,8002025/08/14Aug-2025731.9908-33OTHERS
$ 3,5002025/07/31Jul-2025732.0002-17OTHERS
$ 4,1002025/07/21Jul-2025892.9910-04OTHERS
$ 3,1002025/07/19Jul-2025752.9902-27OTHERS
$ 2,6002025/06/30Jun-20251421.0007-30OTHERS
$ 3,4502025/06/19Jun-2025732.0009-54OTHERS
$ 3,5502025/06/04Jun-2025732.0005-50OTHERS
$ 3,4002025/06/01Jun-2025753.0004-15OTHERS
$ 3,5002025/06/01Jun-202579702-17SKIPS
$ 3,9002025/05/10May-2025904.0001-33OTHERS
$ 3,7002025/05/08May-2025753.0011-14OTHERS
$ 3,4002025/04/22Apr-2025753.0014-15OTHERS
$ 2,9002025/03/28Mar-2025431.0014-31OTHERS
$ 3,2002025/03/16Mar-2025980.0001-14OTHERS
$ 3,5002025/03/07Mar-2025732.0015-33OTHERS
$ 4,6002025/02/09Feb-20251033.0004-28OTHERS
$ 4,1502025/02/01Feb-20251001.0003-12OTHERS
$ 2,4502025/01/31Jan-20251421.0002-41OTHERS
$ 3,6002025/01/18Jan-2025753.0006-36OTHERS
$ 2,2002025/01/04Jan-20251033.0006-28OTHERS
$ 1,8002024/12/24Dec-2024732.0012-33OTHERS
$ 4,0002024/12/09Dec-2024753.0012-26OTHERS
$ 2,7002024/11/30Nov-2024452.0008-51OTHERS
$ 4,0002024/11/25Nov-2024840.0005-52OTHERS
$ 3,4002024/11/21Nov-2024753.0004-36OTHERS
$ 3,8002024/11/19Nov-2024829.0004-53OTHERS
$ 2,4302024/11/15Nov-202430103-03SKIPS
SKIPS : Data contributed by Agents handling the transaction and Only available in Amicus.
SKIPS = Singapore Key Indicator Of Property Sold/Rented
THIS MONTH PREDICTIVE RENTAL RENEWAL
Last Rental Price Renewal Date Area (Sqft) Floor Source
$ 3,0002026/01/01Jan-2026400-500URA
$ 3,4002026/01/01Jan-2026700-800URA
$ 4,0002026/01/01Jan-20261100-1200URA
$ 4,0002026/01/01Jan-2026700-800URA
$ 4,0002026/01/01Jan-2026800-900URA
$ 4,0002026/01/01Jan-2026900-1000URA
$ 4,1502026/01/01Jan-20261000-1100URA
$ 4,1502026/01/01Jan-20261100-1200URA
$ 2,4502026/01/31Jan-20261421.0002-41OTHERS
$ 3,6002026/01/18Jan-2026753.0006-36OTHERS
$ 2,2002026/01/04Jan-20261033.0006-28OTHERS
RENTAL LISTING
Agent Photo
RICKY TAN

CEA : R043219B

Contact : 97389596

Agency : ERA REALTY NETWORK PTE LTD

Price : $3100

PSF : $6.81

SQFT : 455

No. of Room : 1

08-Nov-2025

Agent Photo
MIKE CHIN

CEA : R043876Z

Contact : 81810258

Agency : PROPNEX REALTY PTE. LTD.

Price : $1150

PSF : $11.50

SQFT : 100

No. of Room : Room

07-Nov-2025

Agent Photo
SAM CHIN

CEA : R008856D

Contact : 91860486

Agency : HUTTONS ASIA PTE LTD

Price : $4600

PSF : $4.60

SQFT : 1001

No. of Room : 3

06-Nov-2025

Agent Photo
NIGEL ENG

CEA : R067820J

Contact : 81015245

Agency : PROPNEX REALTY PTE. LTD.

Price : $1250

PSF : $8.33

SQFT : 150

No. of Room : Room

06-Nov-2025

Agent Photo
GABRIEL WU

CEA : R061377D

Contact : 91095778

Agency : ERA REALTY NETWORK PTE LTD

Price : $5000

PSF : $4.55

SQFT : 1098

No. of Room : 4

05-Nov-2025

Agent Photo
YAP SHU HUA

CEA : R063408I

Contact : 81689837

Agency : PROPNEX REALTY PTE. LTD.

Price : $4300

PSF : $5.12

SQFT : 840

No. of Room : 3

04-Nov-2025

Agent Photo
GRACE LIM

CEA : R069624H

Contact : 86521349

Agency : ERA REALTY NETWORK PTE LTD

Price : $1100

PSF : $11.00

SQFT : 100

No. of Room : Room

04-Nov-2025

Agent Photo
WADE KOH

CEA : R068473G

Contact : 93884424

Agency : PROPNEX REALTY PTE. LTD.

Price : $1250

PSF : $12.50

SQFT : 100

No. of Room : Room

03-Nov-2025

Agent Photo
GANESH .

CEA : R045670I

Contact : 91053514

Agency : PROPNEX REALTY PTE. LTD.

Price : $4600

PSF : $4.11

SQFT : 1119

No. of Room : 3

02-Nov-2025

Agent Photo
HOLLY YAN

CEA : R068894I

Contact : 91565666

Agency : PROPNEX REALTY PTE. LTD.

Price : $1200

PSF : $8.00

SQFT : 150

No. of Room : Room

02-Nov-2025

Agent Photo
KELVIN YEO

CEA : R006012J

Contact : 87588649

Agency : PROPNEX REALTY PTE. LTD.

Price : $3900

PSF : $5.18

SQFT : 753

No. of Room : 2

01-Nov-2025

Agent Photo
MARCUS SNG

CEA : R066437A

Contact : 98999666

Agency : PROPNEX REALTY PTE. LTD.

Price : $1100

PSF : $7.33

SQFT : 150

No. of Room : Room

31-Oct-2025

Agent Photo
JAMES WONG

CEA : R007728G

Contact : 96969567

Agency : PROPNEX REALTY PTE. LTD.

Price : $5000

PSF : $5.00

SQFT : 1001

No. of Room : 3

14-Oct-2025

Agent Photo
DOMINIC LEE

CEA : R046159A

Contact : 89192181

Agency : PROPNEX REALTY PTE. LTD.

Price : $3700

PSF : $4.92

SQFT : 752

No. of Room : 2

09-Oct-2025

Agent Photo
DANIEL CHUA

CEA : R029422I

Contact : 96904444

Agency : PROPNEX REALTY PTE. LTD.

Price : $3000

PSF : $6.64

SQFT : 452

No. of Room : 1

09-Oct-2025

Agent Photo
ALINA TAN

CEA : R024639I

Contact : 83333341

Agency : ERA REALTY NETWORK PTE LTD

Price : $3688

PSF : $4.90

SQFT : 753

No. of Room : 2

09-Oct-2025

Agent Photo
ALVIN CHUNG

CEA : R050964J

Contact : 86066845

Agency : ERA REALTY NETWORK PTE LTD

Price : $3788

PSF : $5.03

SQFT : 753

No. of Room : 2

06-Oct-2025

Agent Photo
VICTOR ONG

CEA : R009173E

Contact : 86999879

Agency : ERA REALTY NETWORK PTE LTD

Price : $3800

PSF : $5.19

SQFT : 732

No. of Room : 2

06-Oct-2025

Agent Photo
MAGGIE WONG

CEA : R019010E

Contact : 97315643

Agency : PROPNEX REALTY PTE. LTD.

Price : $3800

PSF : $5.28

SQFT : 720

No. of Room : 2

30-Sep-2025

Agent Photo
ZOE CHENG

CEA : R056445E

Contact : 88222821

Agency : PROPNEX REALTY PTE. LTD.

Price : $3000

PSF : $5.80

SQFT : 517

No. of Room : 1

25-Sep-2025

Agent Photo
LING WANG

CEA : R060857F

Contact : 87930887

Agency : ERA REALTY NETWORK PTE LTD

Price : $4400

PSF : $5.24

SQFT : 840

No. of Room : 3

24-Sep-2025

Agent Photo
JIMMY TAN

CEA : R020101H

Contact : 84441414

Agency : ASSET PROPERTY PRIVATE LIMITED

Price : $3600

PSF : $4.92

SQFT : 732

No. of Room : 2

23-Sep-2025

Agent Photo
CALINE LEONG

CEA : R058347F

Contact : 96934988

Agency : PLB REALTY PTE. LTD.

Price : $3700

PSF : $4.91

SQFT : 753

No. of Room : 2

23-Sep-2025

Agent Photo
JESSIN CHUA

CEA : R066020B

Contact : 97493788

Agency : PLB REALTY PTE. LTD.

Price : $3700

PSF : $4.91

SQFT : 753

No. of Room : 2

23-Sep-2025

Agent Photo
LOW CHIEW MING

CEA : R071850F

Contact : 90915005

Agency : PROPNEX REALTY PTE. LTD.

Price : $1250

PSF : $12.50

SQFT : 100

No. of Room : Room

22-Sep-2025

Agent Photo
MURPHY LEE 李国聪

CEA : R008420H

Contact : 88381388

Agency : HUTTONS ASIA PTE LTD

Price : $4800

PSF : $5.71

SQFT : 840

No. of Room : 3

20-Sep-2025

Agent Photo
LUCAS LEE

CEA : R046942H

Contact : 81311111

Agency : PROPNEX REALTY PTE. LTD.

Price : $2300

PSF : $12.78

SQFT : 180

No. of Room : 1

20-Sep-2025

FLOOR PLAN ELEVATION CHART
PRIMARY SCHOOL

Condominiums Within 1km Condominiums Between 1 to 2km HDB Within 1km HDB Between 1 to 2km
AMENITIES
Property Location MRT Station Primary School Community Club Supermarket