MARTINA MANSIONS
Info
Rental Transactions (Recent 6 Months) : 0
Total Units : 0
Multiple Properties Owner Units : 0
Foreign Owners : 0
Push Technology Delivery System (PTDS). All Numbers are Prescoped/Prescored. Realtime DNC Scrubbed and PDPA Compliant.
Building Details
315 BUKIT TIMAH ROAD17 Floors31 Units

Gallery

Cover

 

Location Map

 

Progress Payment

 

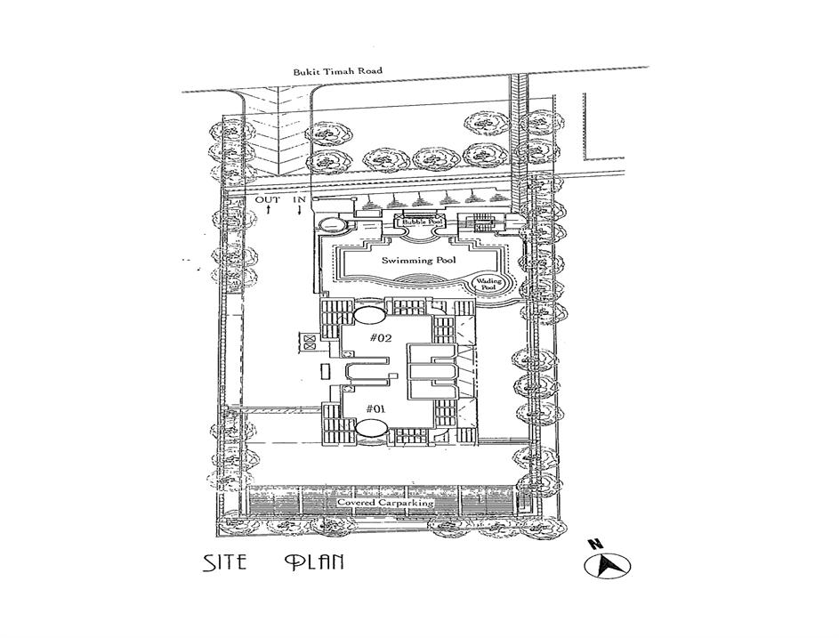
Site Plan

 

RENTAL TRANSACTIONS

4 Rental Transactions

Rental Price Date Area (Sqft) Floor Source
$ 3,5002025/06/01Jun-20251200-1300URA
$ 4,1002025/06/01Jun-20251200-1300URA
$ 4,9002025/06/01Jun-20251200-1300URA
$ 3,6002024/11/01Nov-20241200-1300URA
SKIPS : Data contributed by Agents handling the transaction and Only available in Amicus.
SKIPS = Singapore Key Indicator Of Property Sold/Rented
THIS MONTH PREDICTIVE RENTAL RENEWAL
No data available.
RENTAL LISTING
Agent Photo
YU CHRISTINE

CEA : R028819I

Contact : 97726289

Agency : INTERNATIONAL PROPERTY ADVISOR PTE LTD

Price : $10000

PSF : $4.09

SQFT : 2443

No. of Room : 4

17-Sep-2025

Agent Photo
KEVIN HO

CEA : R064579H

Contact :

Agency : ERA REALTY NETWORK PTE LTD

Price : $5000

PSF : $3.97

SQFT : 1260

No. of Room : 3

22-Aug-2025

Agent Photo
KIA KHIM ANDREW LOH

CEA : R016971H

Contact : 96951919

Agency : PROPNEX REALTY PTE. LTD.

Price : $6000

PSF : $4.77

SQFT : 1259

No. of Room : 3

17-Apr-2025

FLOOR PLAN ELEVATION CHART
PRIMARY SCHOOL

Condominiums Within 1km Condominiums Between 1 to 2km HDB Within 1km HDB Between 1 to 2km
AMENITIES
Property Location MRT Station Primary School Community Club Supermarket